Einfamilienhaus
Schloßstr. 36, 38 und 42, 55296 Lörzweiler
391.600 €









































Schloßstr. 36, 38 und 42, 55296 Lörzweiler
Premium-Feature
7 Tage kostenlos TestenLeichte Feuchtigkeitsschäden im Kellerbereich. Sanierungsbedarf an der Außenfassade.
Premium-Feature
7 Tage kostenlos TestenGrundschuld zugunsten der Sparkasse München. Hypothek über 150.000 €.
Premium-Feature
7 Tage kostenlos TestenPremium-Feature
7 Tage kostenlos TestenPremium-Feature
7 Tage kostenlos TestenDas Gebäude befindet sich in einem guten Zustand. Die Fassade wurde vor kurzem renoviert und zeigt keine größeren Mängel. Das Dach ist intakt und wurde 2018 erneuert.
Die Innenräume sind gepflegt und modernisiert. Böden in gutem Zustand, Elektrik entspricht aktuellen Standards. Küche und Badezimmer wurden vor 5 Jahren erneuert.
Die Innenräume sind gepflegt und modernisiert. Böden in gutem Zustand, Elektrik entspricht aktuellen Standards. Küche und Badezimmer wurden vor 5 Jahren erneuert.
Premium-Feature
7 Tage kostenlos TestenMassivbauweise aus dem Jahr 1985. Ziegeldach mit Betondachsteinen. Keller vorhanden und trocken. Fundament in gutem Zustand ohne erkennbare Setzungsrisse.
Regelmäßige Wartung und Pflege erkennbar. Heizungsanlage wurde 2020 gewartet. Fassade in gutem Zustand, letzte Renovierung 2019. Dachrinnen und Fallrohre intakt.
Energetische Sanierung 2018 durchgeführt. Neue Fenster mit Dreifachverglasung installiert. Dämmung der Außenwände nach EnEV-Standard erneuert.
Keine bekannten Baulasten eingetragen. Grundbuch zeigt keine Belastungen bezüglich Baubeschränkungen oder Durchfahrtsrechte.
Premium-Feature
7 Tage kostenlos TestenDas Objekt wurde ausschließlich von außen besichtigt. Der Zugang zum Einfamilienhaus und den Schuppen war verschlossen, daher basiert die Wertermittlung überwiegend auf den vorliegenden Bauunterlagen und äußeren Eindrücken. Eine Innenbesichtigung erfolgte nicht.
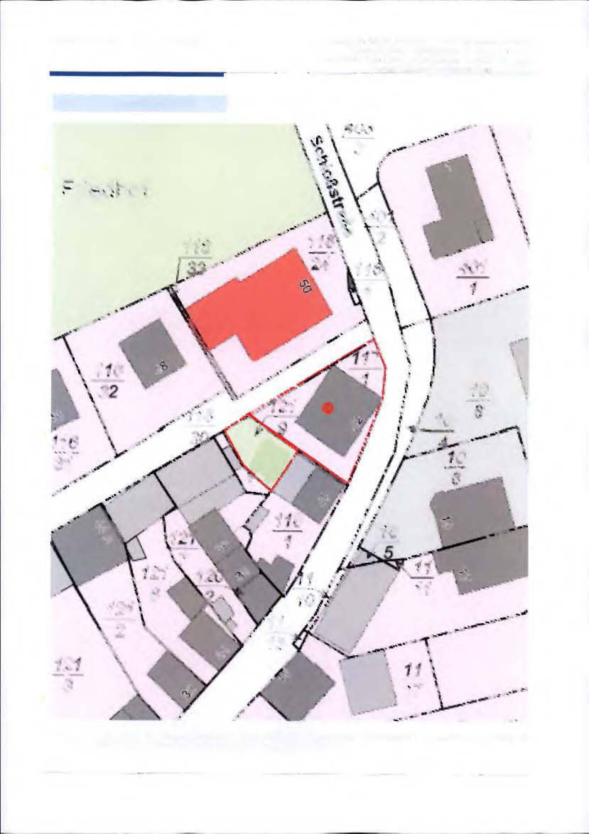
Das Einfamilienhaus (Baujahr ca. 1978) steht auf einem ca. 342 m² großen Grundstück. Das massiv errichtete, freistehende Einfamilienhaus besteht aus Keller-, Erd- und nicht ausgebautem Dachgeschoss. Die Fassade ist verputzt und gestrichen, Sockelbereiche sind mit Keramik verkleidet, und das Gebäude verfügt über ein Walmdach mit Betonziegeleindeckung. Der Zugang zum Erdgeschoss erfolgt über eine massive Treppe mit vorgelagertem Balkon; die Kellereingangstür befindet sich auf der Westseite. Das Grundstück liegt an einer Straßenabzweigung in Hanglage, das Gelände ist jedoch eingeebnet.
Laut Grundriss umfasst das Erdgeschoss 5 Zimmer, Küche, Bad, Diele und Abstellraum. Das Haus verfügt im KG über 4 Kellerräume, Heizungsraum, Waschraum, WC, Vorraum und Flur. Fenster bestehen überwiegend aus Kunststoff mit Rollläden, zum Teil auch als Glasbausteinfelder im KG. Die Grundrissgestaltung gilt als zweckmäßig, Belichtung und Belüftung als ausreichend.
Modernisierungen sind nicht dokumentiert; Instandhaltungsmaßnahmen werden unterstellt. Der Gesamtzustand des Gebäudes ist von außen betrachtet zufriedenstellend, jedoch bestehen einzelne Bauschäden wie Schadstellen an Fassade, Fliesen und Vordach des Kellereingangs.
Das unbebaute Grundstück mit ca. 100 m² hat einen unregelmäßigen Zuschnitt sowie zwei Ebenen (Hof- und Gartenebene, durch Stützmauern getrennt). Es ist als Erholungsfläche ausgewiesen, liegt im Hinterland zum Wohnhausgrundstück (Zugang nur über dieses, kein eigenes Wegerecht) und mit Stützmauern, Einfriedungen und Betonverbundpflaster ausgestattet. Der Bewuchs ist als typisch gärtnerisch mit Hecken, Bäumen, Ziersträuchern angegeben.
Auf dem ca. 33 m² großen Grundstück befindet sich ein Schuppen in Mischbauweise, angebaut an eine Bruchsteinscheune (ehemalige Zehntscheuer des „Schlossanwesens“). Das Baujahr des Schuppens ist unbekannt. Die Konstruktion besteht aus Bruchstein und Hohlblock mit Pultdach (Faserzementplatten). Die Grundstücksoberfläche ist mit Betonverbundsteinen befestigt. Der Schuppen selbst konnte nicht von innen begutachtet werden; Nutzung unbekannt. Das gesamte Flurstück 121/8 ist Kulturdenkmal und unterliegt Denkmalschutz und der Erhaltungs- und Gestaltungssatzung.
Es grenzt zwar an den öffentlichen Straßenraum, ist derzeit jedoch nur über die angrenzenden Grundstücke Fist. 118/1 und Fist. 117/1 bzw. Fist. 121/9 zugänglich.
Zum Wertermittlungs-Stichtag war das Einfamilienhaus augenscheinlich eigengenutzt; eine Vermietung lag nicht vor. Der Garten/Freizeitgrund sowie das Schuppengrundstück werden vermutlich ebenfalls eigengenutzt oder den Nachbargrundstücken zugeschlagen genutzt. Für den Schuppen ist keine gewerbliche Nutzung bekannt.
Lfd. Nr. 1: Einfamilienhaus - Verkehrswert: 373.200,00 €
Lfd. Nr. 2: Garten-/Freizeitgrundstück - Verkehrswert: 14.000,00 €
Lfd. Nr. 3: mit Schuppen bebautes Grundstück - Verkehrswert: 4.400,00 €
Premium-Feature
7 Tage kostenlos TestenAls Eigentümer können Sie uns zusätzliche Informationen zu Ihrer Immobilie zur Verfügung stellen, die potentiellen Interessenten helfen könnten. Dies kann sich positiv auf das Versteigerungsergebnis auswirken.
Kontaktieren Sie uns per E-Mail unter info@zvgscout.com mit dem Kennzeichen: 260 K 41-23-einfamilienhaus-gartengrundstueck-u-weiteres-grundstueck-1128992.
(Berechnet auf Basis des Verkehrswerts als Zuschlagswert)
(verzinster Betrag: 352.440 €)
Alle Angaben und Berechnungen von ZvgScout sind ohne Gewähr.
Detaillierte Kostenaufstellung & Rechner
Musterstraße 12, 12345 Musterstadt
Supermarkt
Schulweg 8, 12345 Musterstadt
Schule
Bahnhofsplatz 1, 12345 Musterstadt
ÖPNV
Alle oben gemachten Angaben ohne Gewähr. ZvgScout übernimmt keine Haftung für die Richtigkeit und Vollständigkeit der dargestellten Informationen.